︎
nosotros
contacto
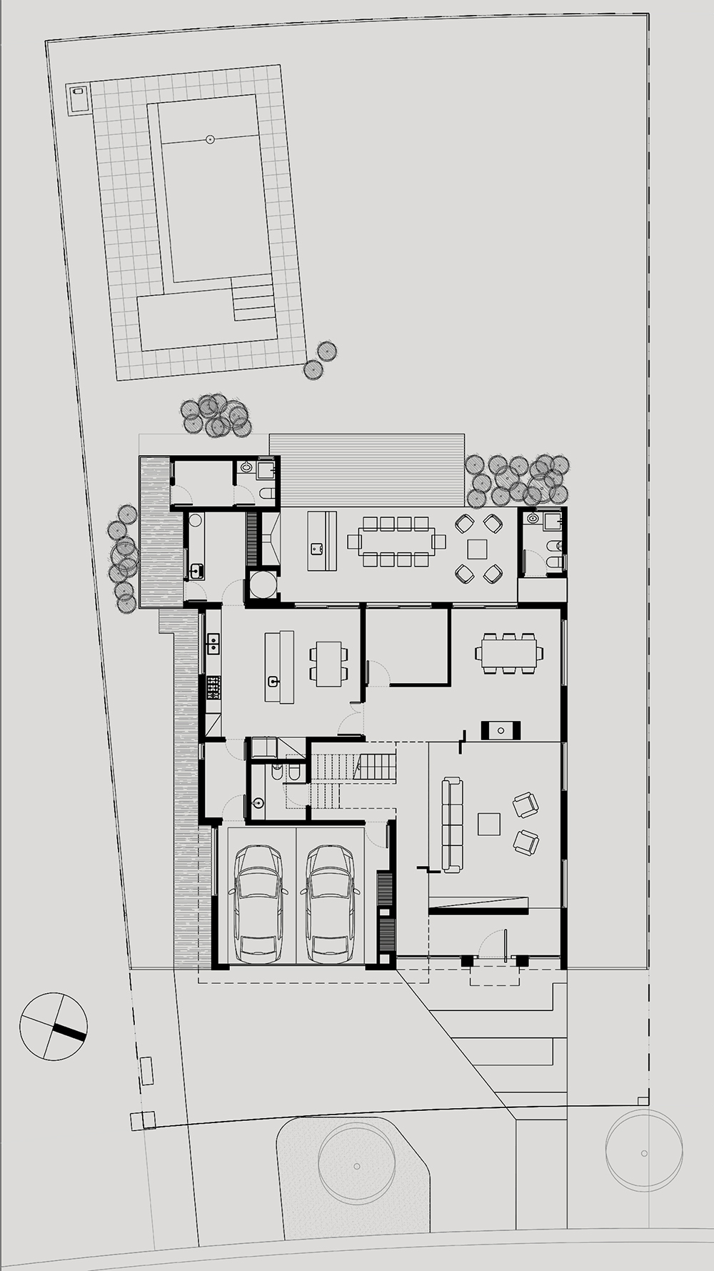
VIVIENDA UNIFAMILIAR
Superficie cubierta: 338m2
Construcción: Tradicional
Ubicación: Barrio Privado El Cantón, Escobar, Bs As
Tareas: Proyecto y Dirección, Documentación ejecutiva, 3d
︎︎︎
︎
︎
proyectos
a medida
modelos
construcción
diseño
descargas