︎
nosotros
contacto
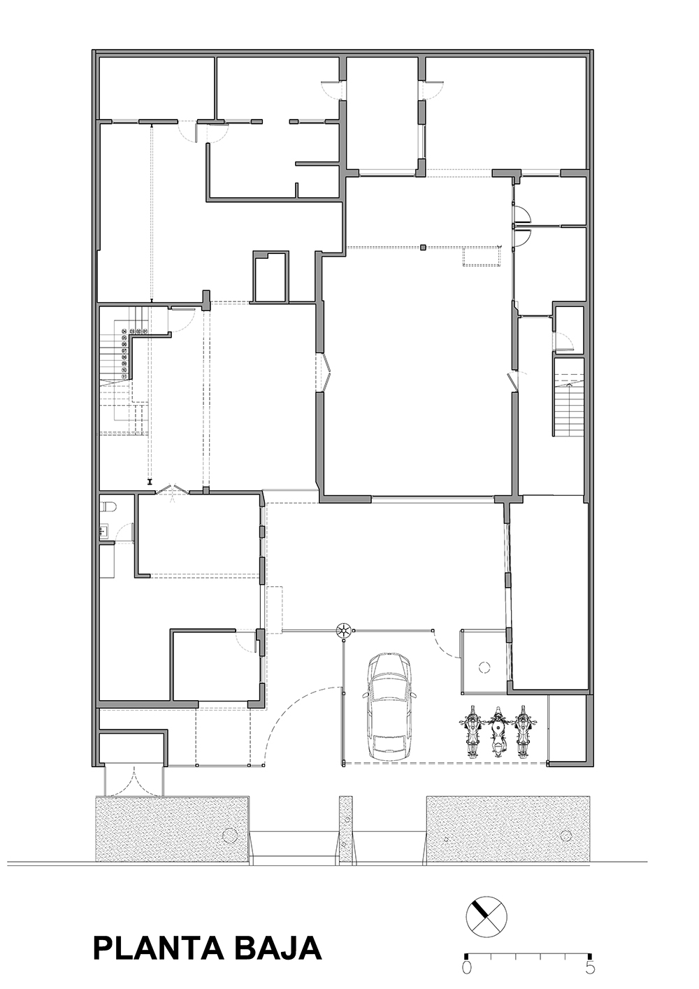
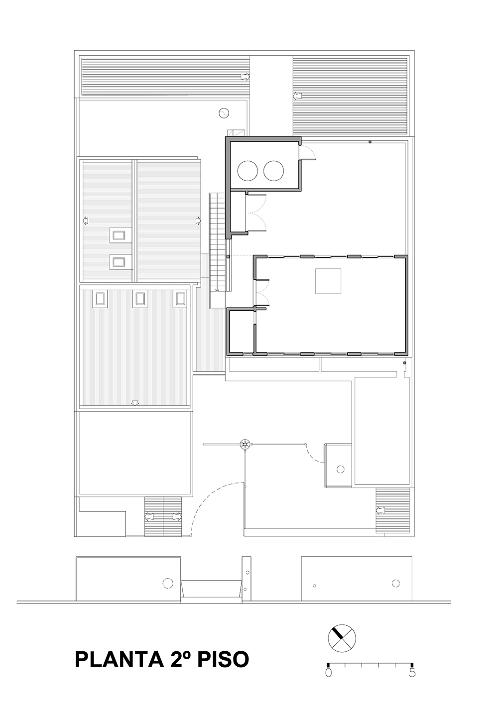
AMPLIACIÓN Y REFORMA DE OFICINAS
Superficie Cubierta: 247m2
Sistema constructivo: Steel Framing/Tradicional
Ubicación: Martinez, Bs As
︎︎︎
︎
proyectos
a medida
venta de proyectos
construcción
descargas