︎
nosotros
contacto
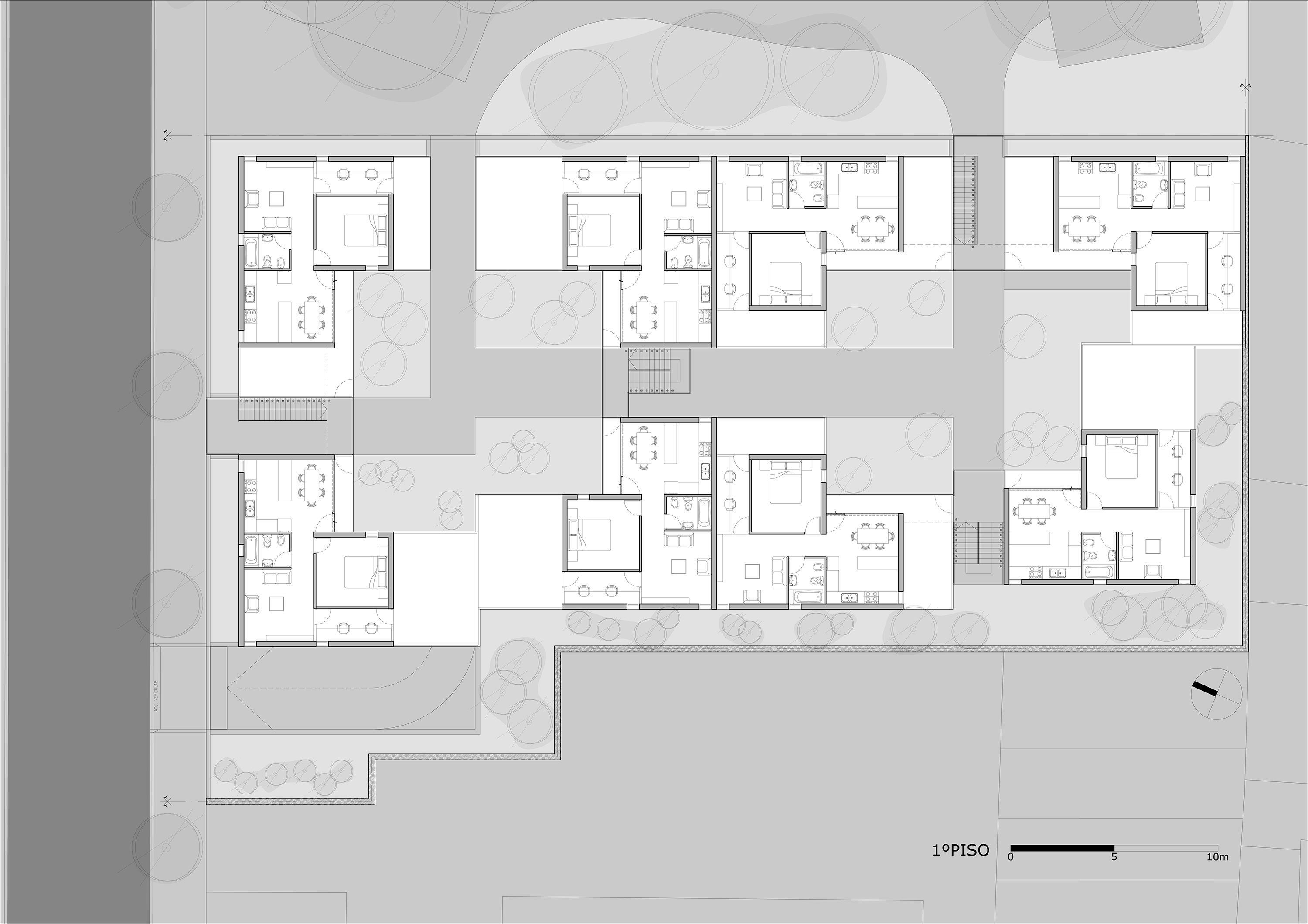
COMPLEJO DE VIVIENDAS
Barracas, Buenos Aires
proyecto + 3d
︎
︎
proyectos
a medida
modelos
construcción
diseño
descargas