︎
nosotros
contacto
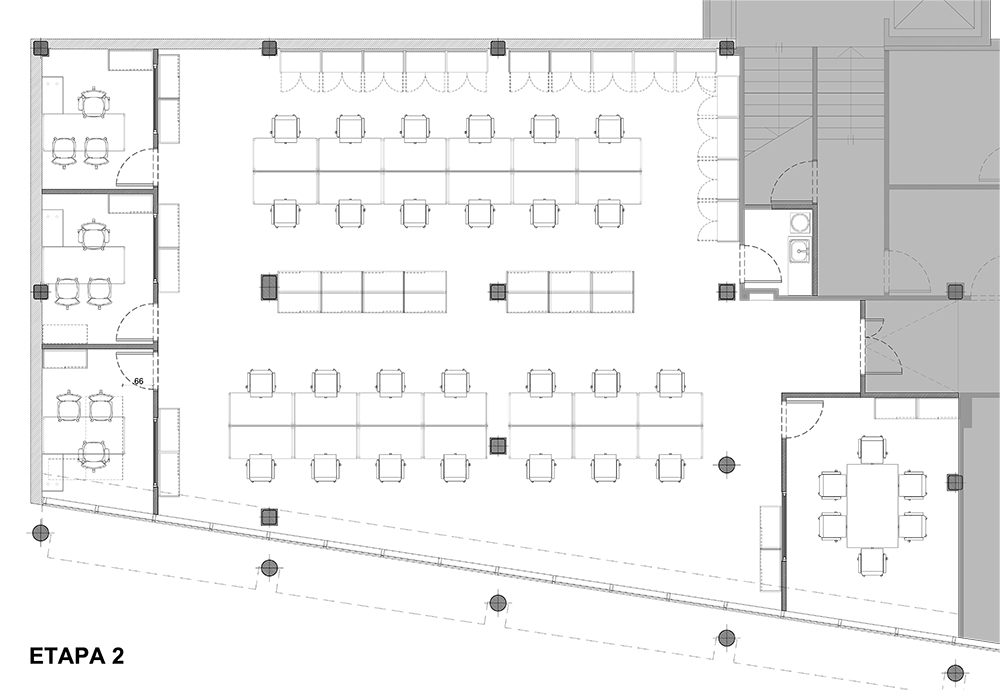
PROYECTO DE NUEVAS OFICINAS
Superficie: 250m2
Cliente: Denver Farma
Ubicación: Parque Industrial de Garin, Bs As
Tareas: Proyecto y Dirección de Obra, 3d
︎︎︎
︎
︎
proyectos
a medida
modelos
construcción
diseño
descargas