︎
nosotros
contacto
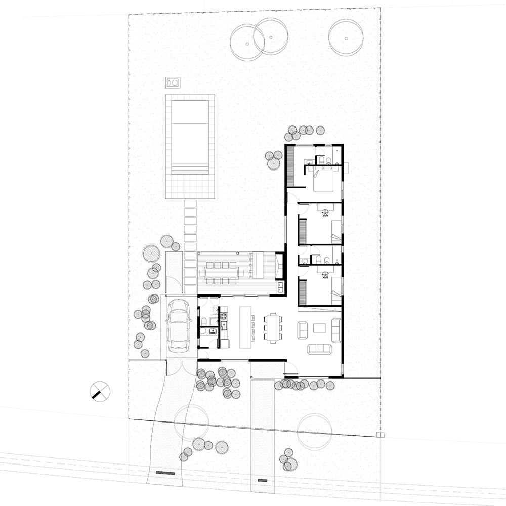
VIVIENDA UNIFAMILIAR
Superficie cubierta: 132m2
Construcción: Steel Framing
Ubicación: Barrio Privado El Ensueño, Ing. Maschwitz, Bs As
Tareas: Proyecto y Dirección, construcción
︎︎︎
︎
︎
proyectos
a medida
modelos
construcción
diseño
descargas