︎
nosotros
contacto
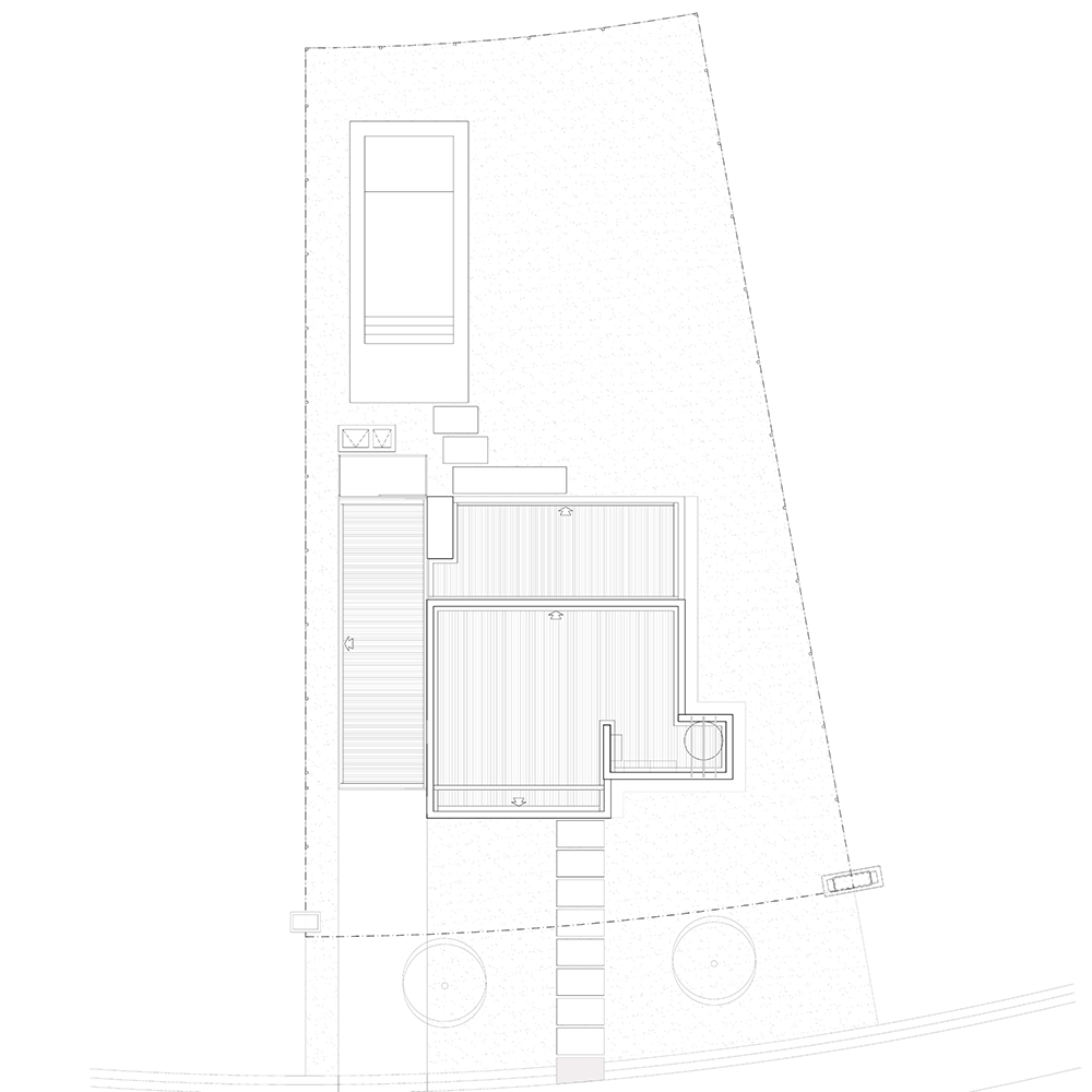
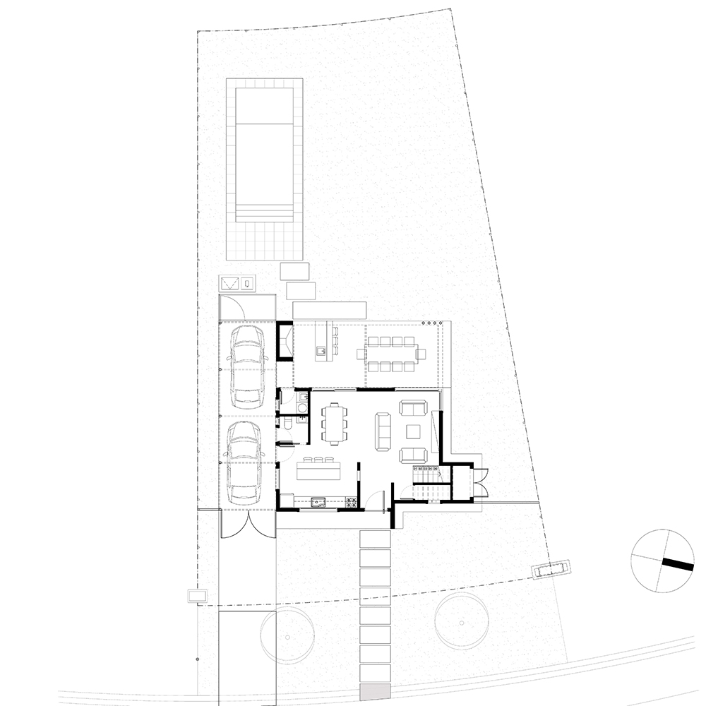
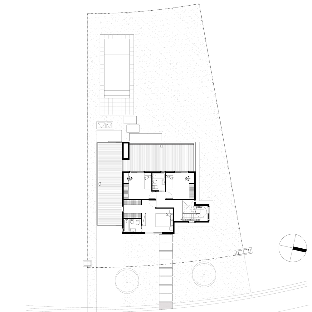
VIVIENDA UNIFAMILIAR
Superficie cubierta: 122m2
Construcción: Steel Framing
Ubicación: Barrio Privado Santa Emilia, Pilar del Este, Pilar, Bs As
Tareas: Proyecto y Dirección, construcción
︎︎︎
︎
︎
proyectos
a medida
modelos
construcción
diseño
descargas