︎
nosotros
contacto
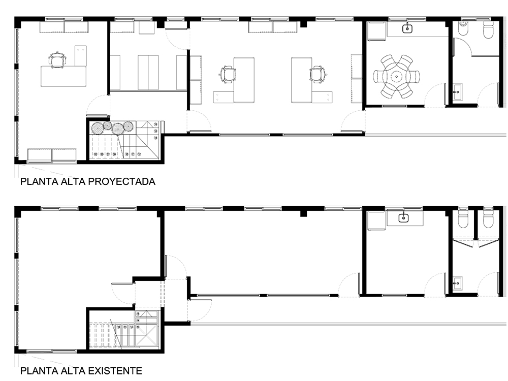
PROYECTO DE REFORMA Y MODERNIZACIÓN
Superficie: 110m2
Cliente: Mercoglass
Ubicación: Grand Bourg, Bs As
Tareas: Proyecto y Dirección de Obra, 3d
︎︎︎
︎
︎
proyectos
a medida
modelos
construcción
diseño
descargas