︎
nosotros
contacto
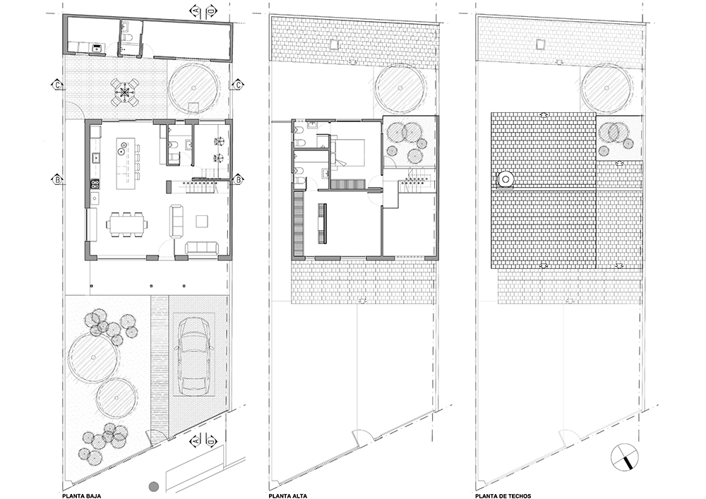
REFORMA DE VIVIENDA
Superficie Cubierta: 170m2
Sistema constructivo: Tradicional
Ubicación: Acasusso, Bs As
︎︎︎
︎
proyectos
a medida
venta de proyectos
construcción
descargas