︎
nosotros
contacto
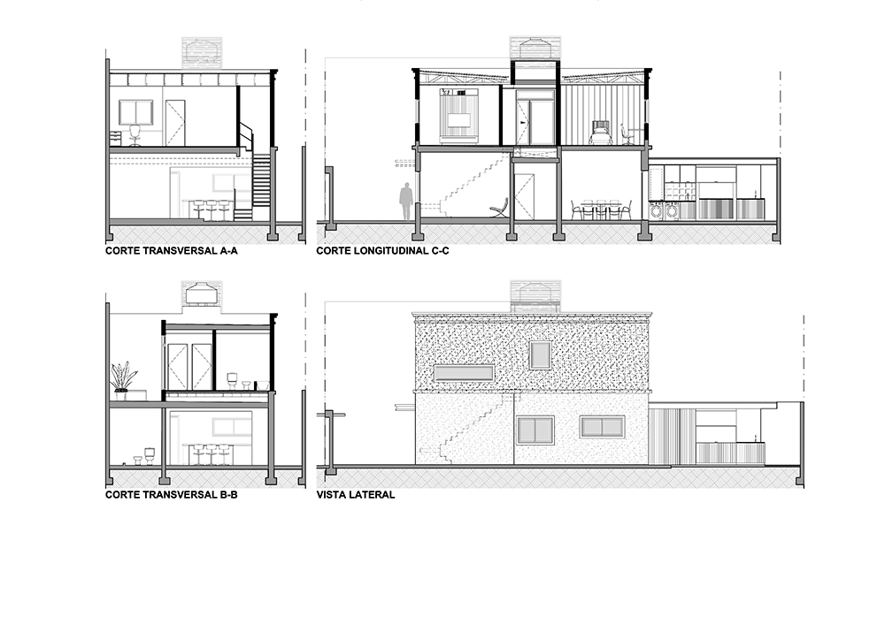
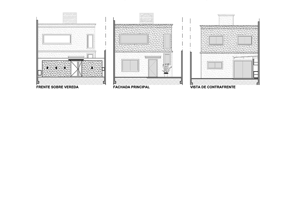
REFORMA DE VIVIENDA UNIFAMILIAR
Superficie Cubierta: 152m2
Sistema constructivo: Steel Framing/Tradicional
Ubicación: San Andrés, Bs As
︎︎︎
︎
proyectos
a medida
venta de proyectos
construcción
descargas